Parkside 14 – Provo – AV. AUGUST 6TH
Unit Details
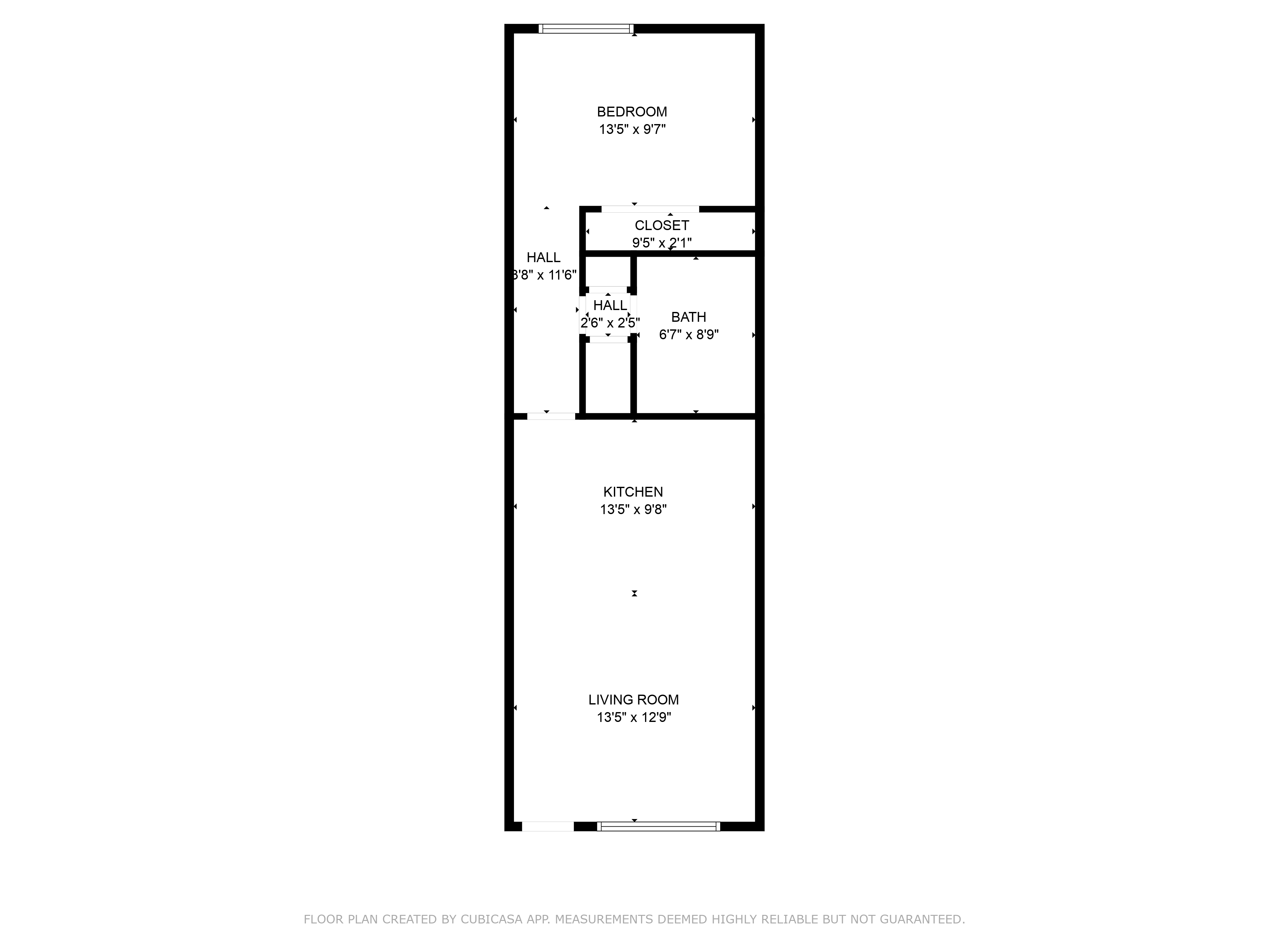
Beds : 1Baths : 1
Sq Ft : 800
Parking : 1 Reserved Uncovered
Misc :
Amenities
central airUtilities
| Utility | Paid By | In Name Of |
|---|---|---|
| Gas | Tenant | Tenant |
| Electric | Tenant | Tenant |
| Internet ($60/mo; see lease for details) | Tenant | Landlord |
| Cable | Tenant | Tenant |
| Water / Sewer ($25/mo) | Tenant | Landlord |
| Garbage ($15/mo) | Tenant | Landlord |
| Tenant pays a $30/month Resident Benefit Package. | ||
Room Types
1 Bed / 1 BathPrice : $1235
Deposit : $1275
Total Spots : 1
Available Spots : 1
APPLY NOW
Description : Available August 6th 2026 - July 31st 2027
Rental Expenses Disclosures:
The amounts listed on this page make up the rental disclosure, which is given pursuant to Utah law. This is not a contract nor is it legally binding. The final rental agreement is the binding document. The information contained on this page is valid as of today’s date; rental amounts may fluctuate based upon availability and market conditions.
You should review the lease agreement before signing. After application, if the terms of the lease are different than those disclosed on this page and you decide to not sign the lease and accept the terms listed in the lease, you may be entitled to a refund of the application fees paid. After rejection of the lease terms due to the differences or non-disclosures, you may request a refund of the application fee by emailing leasing@aspenridgemanagement.com within five business days, specifically stating the differences and the cause for such request. The request must be made as required by Utah law.
Other elective services and options may be offered that you are not required to accept. These may include but are not limited to parking, washer/dryer, pets, etc.
In addition, the rental agreement will contain fees, fines and costs related to breaches of the lease or actions taken (or not taken). These may include but are not limited to late fees, service of notice fees, eviction fees, tenant change fees, re-key fees, violation fines, and costs for damages. An example of some of these fees are listed below, but please refer to the rental agreement for all fees:
- $75 late fee if not paid by the 5th
- $250 Transfer Fee (the fee if you sell contract to another approved tenant)
- The Landlord shall retain a portion of the Security Deposit as a Non-Refundable Cleaning and Maintenance Fee equal to the actual cost of carpet cleaning plus a Maintenance Fee of $20 per month of Agreement term.
- $100 refresh fee deducted from deposit for each contract term
- $60 One-time Lease Initiation Fee due when lease is signed
- $30/mo. Resident Benefit Package
Again, the lease agreement is the binding document; if you are approved and choose to sign the lease agreement for this property you are accepting all terms, pricing, conditions, etc. listed in the legally binding lease agreement, regardless of what is listed here. All amounts listed on this page are subject to change at any time.
Rental Criteria
All persons will be treated fairly and equally without regard to race, color, religion, sex, familial status, disability, national origin, source of income, sexual orientation, or gender identity.
The following standards will be used to judge your application for tenancy. You must meet these standards, or your application may be denied. Applicants are judged on the same standards on a first come/first serve basis, one applicant/group of applicants at a time. You will be notified as quickly as possible if other applicants are ahead of you for the requested property. If your application is not processed you will be refunded the application fee (if paid), unless you would like to transfer your application to a different available property
All proposed occupants 18 years of age and older must apply, and all must qualify according to the terms listed below. Applicants will not be considered until all applications for proposed adult occupants have been received.
If applicant is asked for any other information or documentation, or applicant needs a Co-Signer to qualify because of credit history, applicant has 12 hours to provide the requested information/applications/funds/cosigner, or other applicants may be given consideration. If management notifies you about something on your application that disqualifies you from the property (you have pets, smoke, etc) other applicants will be immediately considered and given the opportunity to sign a lease. If you disagree due to an error on your application, you must notify ARM immediately, and your application may be considered again at that time if you qualify, and if there aren’t other applicants ahead of yours. Application Fee is due at the time you submit your application; your application will not be considered until the application fee is paid.
You will be notified if your application is approved, and will be sent a lease to sign. You will have 24 hours from the time the lease is sent to sign the lease agreement. If you do not sign the lease by the time listed in the email with the lease agreement, other applicants may be considered and given the opportunity to sign a lease. Your contract at a property is NOT guaranteed until your lease agreement has been signed.
Applicants Must Meet All of the Following Criteria:
$50 Non-Refundable Application Fee: Each adult applicant agrees to pay a $50 application fee, and consents to have a background check done. The application fee is completely non-refundable once management begins processing your application. If you change your mind or fail to qualify for any reason you will not be refunded this fee.
Photo Identification: Each applicant must provide a photo ID.
Social Security Number: Applicants must have a U.S. social security number, or may be required to have a Co-Signer who has an U.S. social security number.
Pets: Unless property is listed as pet-friendly, pets are not allowed. Applicants with pets will not be approved.
Smoking: Smoking is not allowed on the property. Applicants who smoke will not be approved.
Criminal History: Your application will be rejected if you have been convicted of any crime in the past five years against person or property that would present a threat to the owner, neighbors, roommates, or the rental property, as determined solely by management. Applicants on a publicly available list of offenders who are required to publish their address will be denied.
Rental History: Applicants must provide the name and contact information for their previous two landlords, or all landlords in the last five years. Applicants must provide all of the addresses they have lived at for the last five years. Applicants may be denied if they have had any evictions, defaults in lease agreements, late rental payments, or if they owe any money to any other landlord.
Credit History: Your credit must reflect that all accounts are current. All collection accounts must be “paid in full/as agreed”. Applications will be denied if they have filed for bankruptcy in the last 2 years, or if you have any bankruptcies that have not been discharged at least one year prior to the application.
If all other credit criteria is met, applications with minimal past-due accounts, no credit history, or minimal credit history may still be considered, with a Co-Signer.
Employment Requirements: Employment history should show the applicant has been employed with their current employer for at least 6 months (only one adult proposed occupant must meet this requirement). Applicants with no employment, but sufficient monthly income as stated below, may still be considered.
Income Requirements: Combined income for all proposed adult occupants must be at least three times the monthly rent. Exceptions can be made for applicants who have sufficient cash reserves to cover rent for at least 6 months, or with a Co-Signer. Applicants receiving Section 8 assistance also meet this requirement.












